螺桿壓縮�冷卻軸密�
密封冷卻系統(tǒng)非常重要,即使在�(zhuǎn)子螺桿軸冷卻壓縮機開口處,通常依靠機械密封接觸具有更好的性能,其中主要包括彈簧式

1�2—傳動銷�3—傳動套�4—彈簧座�5—彈��6—動�(huán)輔助密封��7—動�(huán)�8—卡�(huán)�9—靜�(huán)�10—靜�(huán)輔助密封��11—防�(zhuǎn)�
�5-37 彈簧式機械密�

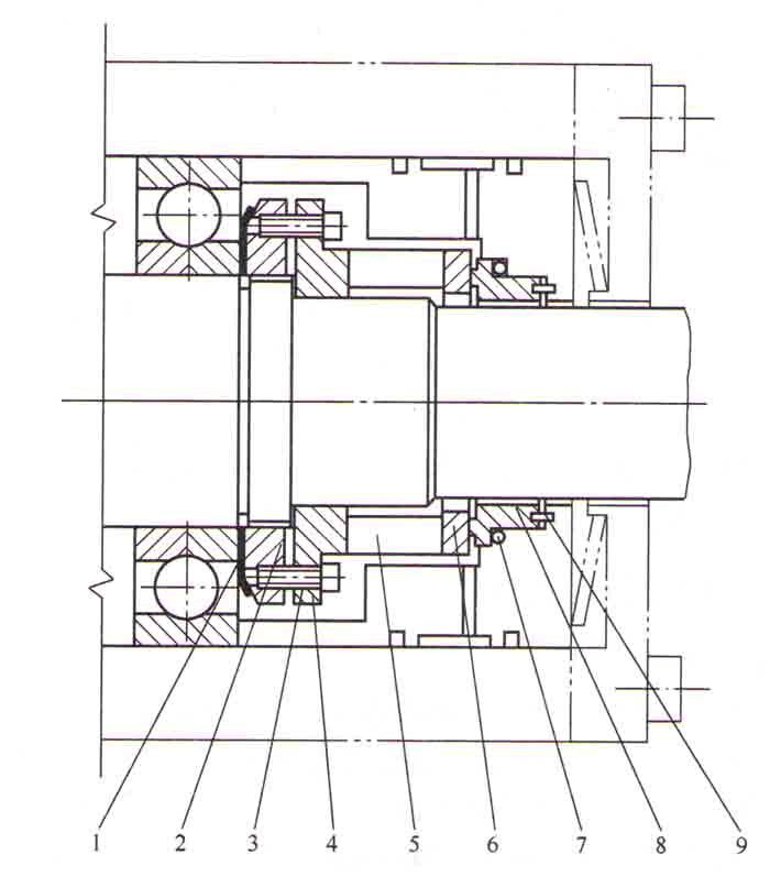
1—鎖緊螺母;2—密封墊��3—螺釘;4—傳動套�5—波紋管�6—動�(huán)�7—靜�(huán)輔助密封��8—靜�(huán)�9—防�(zhuǎn)�
�5-38 波紋管式機械密封